Opis
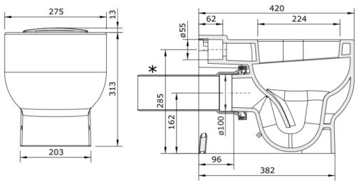
Miska ceramiczna wykonana z najwyższej jakości ceramiki, ergonomiczna powierzchnia łatwa dla czyszczenia , niewidoczne mocowania . Zaprojektowana z myślą o najmniejszych użytkownikach ze względu na wysokość. Preferowana dla dzieci do lat 3 dla zastosowania w toaletach żłobków





